In 1999, Harvard University made the decision to reduce the size of its residential “blocking groups” from sixteen students to eight, aiming to prevent large cohorts from isolating themselves. Eight was seen as the ideal number: small enough to encourage interaction between groups, yet still large enough to feel like a solid family unit. The change proved effective and remains in place today.
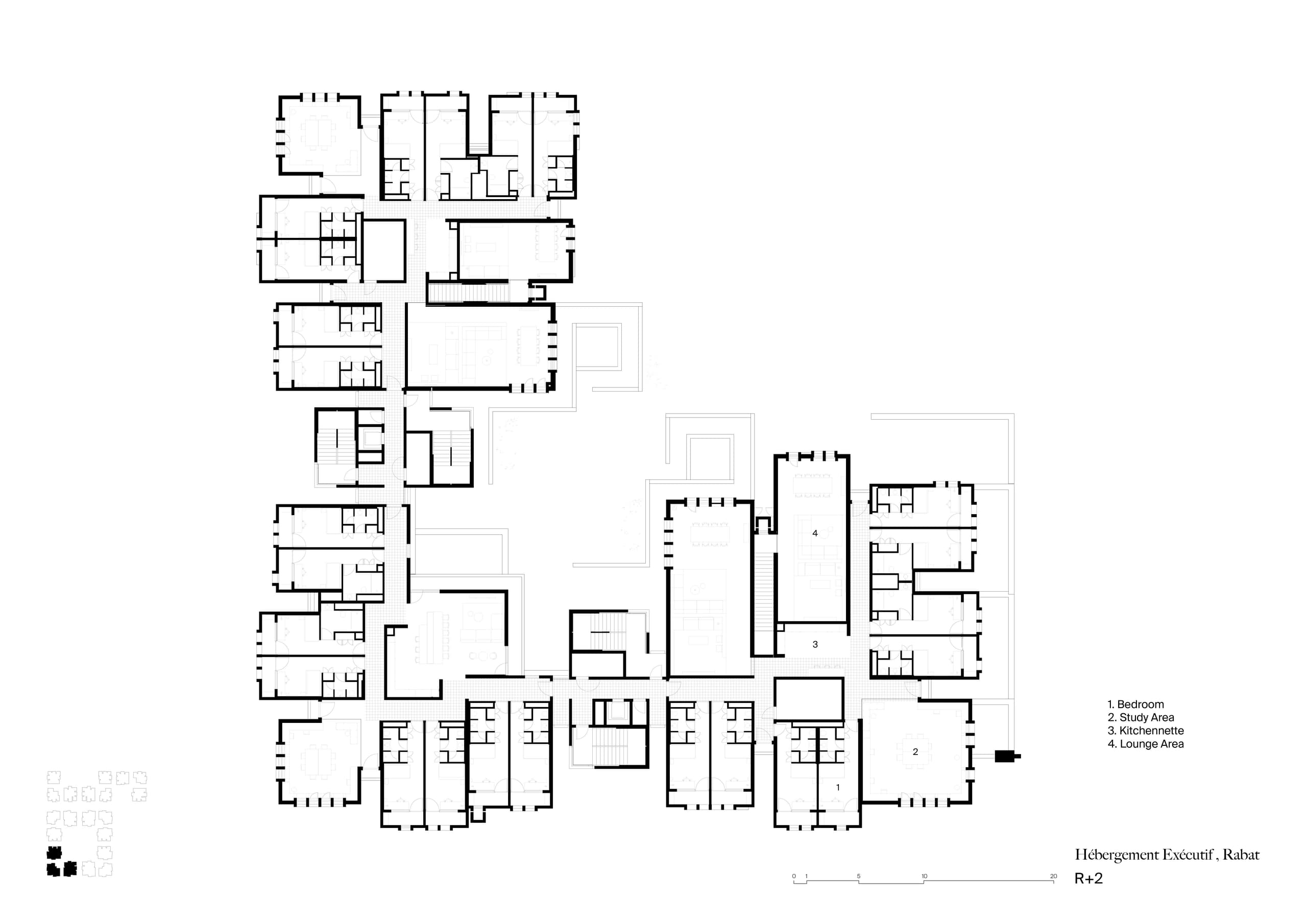
The Hébergement Exécutif (Executive Accommodation) at UM6P in Rabat has been planned around this model. Because both daily life and academic activities are organised around groups of eight, the architecture takes this unit as its fundamental building block.
Regarding the actual construction – we’re watching the buildings go up at a remarkable pace, in spite of their considerable scale and massing, due to the efficiency of the local builders and materials. What these photos also do is demonstrate some of the key design moves at that moment of transition or becoming. (There is a particularly emblematic “before-and-after”: the loose reddish dust of the natural landscape being formalised into terracotta tiles made from the same earth.)
In broad terms, the buildings are composed of a series of boxes linked by an internal corridor. Depending on the activities inside, these boxes have windows on one, two, or three sides, but always a view to the outdoors. Windows are stacked from floor to floor and are framed by elements that emphasise their vertical proportions.
Each building is roughly L-shaped, and their varied orientations generate plazas and open spaces of different scales and hierarchies. Tall urban “gateways” between them signal the entrances to the residential courtyards and aim to bring the individual blocks together as an identifiable whole.
The colour and material palette is restrained. Neutral white facades reflect the sun and stand out against the "plinth" of red terracotta tiles, which extend into planters, steps, and seating. Inside, corridors are kept understated while bedrooms and common areas each take on a single colour from the Taller’s Colour Chart. In this sense colour highlights activity and gives each space its own identity. Every room has a balcony or loggia – recessed openings that provide shade and support passive cooling.
IMAGES BY
GREGORI CIVERA








IMAGES BY
GREGORI CIVERA






